Dourdan
Locatie
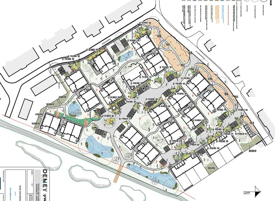
Dourdanstraat 1-48 te Geluwe
Woningtype
Stapelwoningen en gezinswoningen
Ontwerper
AMJ-architectuur
Aantal woningen
Stapelwoningen (6 per blok):
- 4 op gelijkvloers
- 2 op niveau
6 woningen
Start werken
Start voorzien begin 2026
Beschrijving van het project
De nummers 1 tot 48 werden gesloopd om plaats te maken voor stapelwoningen: 4 op gelijkvloers met 2 slaapkamers en 2 op niveau met 1 tot 3 slaapkamers, allen met een groot terras of gemeenschappelijk groen. Er komen ook 6 woningen met 5 slaapkamers en een grote tuin.